|
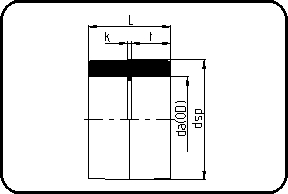
Dimension
|
Code
|
Detail
|
da(OD)
mm |
L
mm |
dsp
mm |
t
mm |
k
mm |
p
bar |
|
20
|
11.053.0020.07
|
20 - MOP 10 bar
|
20
|
35
|
29,4
|
16
|
3
|
10
|
|
25
|
11.053.0025.07
|
25 - MOP 10 bar
|
25
|
39
|
35,1
|
18
|
3
|
10
|
|
32
|
11.053.0032.07
|
32 - MOP 10 bar
|
32
|
43
|
43,2
|
20
|
3
|
10
|
|
40
|
11.053.0040.07
|
40 - MOP 10 bar
|
40
|
47
|
51,8
|
22
|
3
|
10
|
|
50
|
11.053.0050.07
|
50 - MOP 10 bar
|
50
|
52
|
64,4
|
24
|
4
|
10
|
|
63
|
11.053.0063.07
|
63 - MOP 10 bar
|
63
|
60
|
81,3
|
29
|
2
|
10
|
|
75
|
11.053.0075.07
|
75 - MOP 10 bar
|
75
|
70
|
92,5
|
33,5
|
3
|
10
|
|
90
|
11.053.0090.07
|
90 - MOP 10 bar
|
90
|
79
|
115
|
37
|
6
|
10
|
|
110
|
11.053.0110.07
|
110 - MOP 10 bar
|
110
|
90
|
133,8
|
42
|
6
|
10
|

蘇公網(wǎng)安備32118202000560號(hào)